Zlepenie novej nádrže
Konečne je to tu, stolík aj s akvárkom.
Stolík pripravený aj s dierou na prepad.


Ešte špeciálna podložka

a test s prepadom

Príprava krytu na svetlo. Plastový s imitáciu dreva podľa stolíka. Zatiaľ by mali postačiť 2 kusy T5 žiariviek.

Základom fungovania morského akvária je aj dobrá filtrácia. Filter som navrhol podľa možností v priestore skrinky. Na veľkosť akvária by mal postačovať.

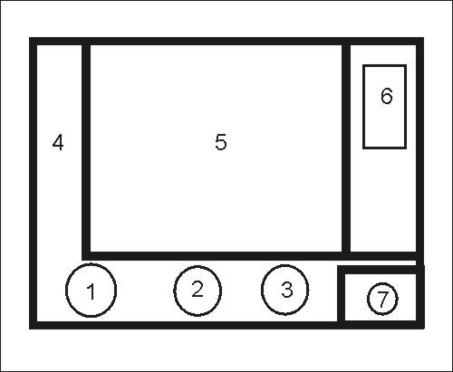
Popis:
1.Odpeňovač
2.Zeolit
3.Phosex
4.Komora pre keramiku
5.DSB (vysoké dno + živé skaly)
6.Výtlačné čerpadlo
7.Vstup z akvária
Takto vyzerá tesne po zlepení


Filter je odskúšaný, pripravený na zaplnenie. Na vstup z akváriá som použil stenovú prechodku, dobre poslúži na na upevnenie trubky z akváriá. na prechodku som upevnil filtračnú tkaninu ( silón ) na zachytávanie hrubších nečistôt.

Detail prechodky.

Odskúšanie filtra v skrinke. Všetko funguje tak ako má, môžem teda pridať aj ostatné zariadenia a pripojiť vstup z akvária.

Na dno som dal živý aragonitový piesok, aby nábeh akvária bol rýchlejší. Cca po mesiaci som skúsil pridať prvých obyvateľov. Filter by už mal pomaly nabiehať, tak som zvedavý ( alebo netrpezlivý ) ako sa bude akvárku dariť. Ako prvé som očákaval sinice.Ale každé nové akvárium si nimi musí prejsť.





Po pár dňoch sa mäkké korály celkom dobre uchytily.







Po návšteve maďarských obchodov som neodolal a kúpil som tri zoantusy.
Foto po príchode domov


A za pár dní vyzerajú takto ...




 


Nová sasanka Quadricolor


Amphiprion clarkii "kŕmi" sasanku


